物件詳細情報
|
[rof891]桂木事務所 青森市桂木4−4−6 |
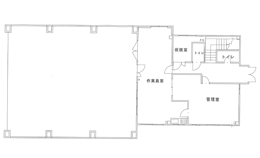
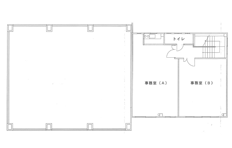
物件のイメージ
|
物件情報の詳細
|
|||
| 形式 | 1棟 | 賃料 | 330,000円 |
| 間取詳細 | 共益費/保険 | なし/なし | |
| 専有面積 | 346.41u | 敷金/礼金 | 3ヶ月/ |
| 所在階/建物階 | 1.2階/2階建 | 償却(敷引) | なし |
| 駐車場 | 無し | 建物構造 | 鉄骨造 |
| 交通手段 | 青森市内 | 築年月/完成予定 | - |
| 引渡し日 | 相談 | 取引形態 | 仲介 仲介手数料:330,000円 |
| 設備等 |
|
||
| その他 |
駐車場 複数台駐車可 |
||
| 情報登録日 | 2025年07月24日 | 次回更新予定 | 随時 |
地図
|
|||



物件のイメージ



物件情報の詳細
地図
印刷
お問い合わせ
BACK