物件詳細情報
|
[sho913]青森市野沢中古住宅
綺麗な中古住宅 温泉&畑付
|
物件のイメージ
|
物件情報の詳細
|
|||||||||||||||||||||||||||
| 間取 | 3LDK | 価格 | 14,000,000円 | ||||||||||||||||||||||||
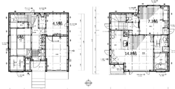
| 間取詳細 | 1F 和6、洋4.5、車庫 2F LDK14.8 洋7.3 | 共用施設負担金 | |||||||||||||||||||||||||
| 区画/私道負担 | 381.21/ | 販売区画 | / | ||||||||||||||||||||||||
| 建物階/建物面積 | 2階建/107.64u | 建物構造 | 木造 | ||||||||||||||||||||||||
| 駐車場 | 無し | 建蔽率:容積率 | 50%:80% | ||||||||||||||||||||||||
| 地目 | 宅地 | ||||||||||||||||||||||||||
| 交通手段 | 青森市内 | 築年月/完成予定 | 2005年9月(築21年) | ||||||||||||||||||||||||
| 権利形態 | 所有権 | 国土法 | |||||||||||||||||||||||||
| 引渡し日 | 即日 | 取引形態 | 仲介 | ||||||||||||||||||||||||
| 設備等 |
|
||||||||||||||||||||||||||
| その他 |
オール電化(ガス代、灯油代、水道代が一切かかりません) 温泉使用料 3,500円/月 |
||||||||||||||||||||||||||
| 情報登録日 | 2025年08月25日 | 次回更新予定 | 随時 | ||||||||||||||||||||||||
地図
|
|||



綺麗な中古住宅 温泉&畑付
物件のイメージ




物件情報の詳細












地図
印刷
お問い合わせ
返済シミュレーション
BACK