物件詳細情報
|
[sho947]はまなす2丁目 新築住宅A
生活利便性に優れた いい場所に 土地・建物・外構と充実した設備を 含めたオールインワン仕様
|
物件のイメージ
|
物件情報の詳細
|
|||||||||||||||||||||||||||||||||||||||||||||
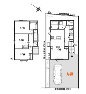
| 間取 | 3LDK | 価格 | 24,900,000円 | ||||||||||||||||||||||||||||||||||||||||||
| 間取詳細 | 共用施設負担金 | ||||||||||||||||||||||||||||||||||||||||||||
| 区画/私道負担 | 109.03/ | 販売区画 | 1/2 | ||||||||||||||||||||||||||||||||||||||||||
| 建物階/建物面積 | 2階建/75.80u | 建物構造 | 木造 | ||||||||||||||||||||||||||||||||||||||||||
| 駐車場 | 2台 | 建蔽率:容積率 | 60%:200% | ||||||||||||||||||||||||||||||||||||||||||
| 地目 | 宅地 | ||||||||||||||||||||||||||||||||||||||||||||
| 交通手段 | 青森市内 | 築年月/完成予定 | 2026年8月(完成予定) | ||||||||||||||||||||||||||||||||||||||||||
| 権利形態 | 所有権 | 国土法 | |||||||||||||||||||||||||||||||||||||||||||
| 引渡し日 | 即日 | 取引形態 | 仲介 | ||||||||||||||||||||||||||||||||||||||||||
| 設備等 |
|
||||||||||||||||||||||||||||||||||||||||||||
| その他 |
施工:株式会社アットプラス(https://atplus.co.jp/housessale/hamanasu2_5_a/) ・省令準耐火構造『2×4工法』 ・引渡時品質2年保証 ・住宅瑕疵担保責任保険10年保証 ・一部住宅設備10年保証(システムキッチン・システムバス・洗面化粧台・温水暖房便座・給湯器・24時間換気システム) ・地盤調査済&引渡日から10年間保証 ・べた基礎工法採用(底部分も基礎に) ・基礎断熱工法採用 ・フラット35S対応住宅 ・住宅ローン控除対象住宅 |
||||||||||||||||||||||||||||||||||||||||||||
| 情報登録日 | 2026年04月07日 | 次回更新予定 | 随時 | ||||||||||||||||||||||||||||||||||||||||||
地図
|
|||



生活利便性に優れた いい場所に 土地・建物・外構と充実した設備を 含めたオールインワン仕様
物件のイメージ



物件情報の詳細





















地図
印刷
お問い合わせ
返済シミュレーション
BACK