物件詳細情報
|
[sot949] 青森市第二問屋町 売アパート 【】
長期満室が続く、安心の収益物件 |
物件のイメージ
|
物件情報の詳細
|
|||||||||||
| 用途地域 | 準工業地域 | 価格 | 23,000,000円 | ||||||||
| 地目 | 宅地 | 共用施設負担金 | |||||||||
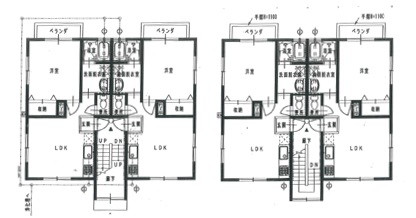
| 敷地/私道負担 | 257.62u(77.93坪)/ | 販売区画 | |||||||||
| 現状 | 168.32u(建物有) | 都市計画法 | 都市計画区域 | ||||||||
| 坪単価 | 約29.51万円 | 建蔽率/容積率 | 60%/200% | ||||||||
| 交通手段 | 妙見バス停まで徒歩4分 | 完成(予定)日 | - | ||||||||
| 権利形態 | 所有権 | 国土法 | |||||||||
| 引渡し日 | 即日 | 取引形態 | 仲介 | ||||||||
| 設備等 |
|
||||||||||
| その他 | |||||||||||
| 情報登録日 | 2026年04月10日 | 次回更新予定 | 随時 | ||||||||
地図
|
|||



物件のイメージ



物件情報の詳細




地図
印刷
お問い合わせ
返済シミュレーション
BACK