物件詳細情報
|
[sro932]レーベン青森新町THE GRAND MID
新町の頂がここにあります
|
物件のイメージ
|
物件情報の詳細
|
|||||||||||||||||||||||||||||||||||||||||||||||||||||
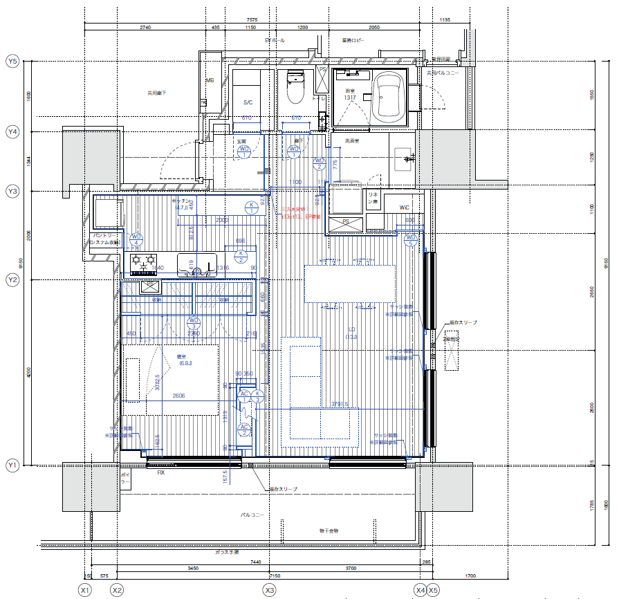
| 間取 | ワンルーム | 価格 | 98,000,000円 | ||||||||||||||||||||||||||||||||||||||||||||||||||
| 間取詳細 | 管理費/修繕積立金 | 18,600円/5,100円 | |||||||||||||||||||||||||||||||||||||||||||||||||||
| 専有/バルコニー | 57.72u/24.49u | 販売区画 | 1/ | ||||||||||||||||||||||||||||||||||||||||||||||||||
| 所在階/建物階 | 14階/14階建 | 建物構造 | RC造 | ||||||||||||||||||||||||||||||||||||||||||||||||||
| 駐車場 | 無し | 建物:延べ面積 | −:− | ||||||||||||||||||||||||||||||||||||||||||||||||||
| 交通 | 青森市内 | 築年月/完成予定 | 2023年2月(築4年) | ||||||||||||||||||||||||||||||||||||||||||||||||||
| 権利形態 | 所有権 | 国土法 | |||||||||||||||||||||||||||||||||||||||||||||||||||
| 引渡し日 | 即日 | 取引形態 | 仲介 | ||||||||||||||||||||||||||||||||||||||||||||||||||
| 設備等 |
|
||||||||||||||||||||||||||||||||||||||||||||||||||||
| その他 |
2LDKを広々ワンルームへリフォーム 最上階のおしゃれなデザイナーズワンルームマンション |
||||||||||||||||||||||||||||||||||||||||||||||||||||
| 情報登録日 | 2025年12月19日 | 次回更新予定 | 随時 | ||||||||||||||||||||||||||||||||||||||||||||||||||
地図
|
|||



新町の頂がここにあります
物件のイメージ













物件情報の詳細

























地図
印刷
お問い合わせ
返済シミュレーション
BACK